Marg PlanSwift

Marg ERP 9+

PlanSwift is a professional digital takeoff and estimating software designed for construction contractors and trade specialists. It streamlines the process of measuring digital blueprints, calculating materials, labor, and costs, and generating precise estimates. Built with an intuitive point-and-click interface, PlanSwift enables users to highlight areas of digital drawings to instantly calculate dimensions, lengths, volumes, and counts. Its drag-and-drop assemblies simplify cost estimation by applying prebuilt material, labor, and waste formulas directly onto a plan.

The software supports a wide range of construction trades, including general contracting, electrical, drywall, concrete, plumbing, flooring, painting, landscaping, HVAC, and framing. Users can import common file formats such as PDF, DWG, DXF, JPG, and more, making it flexible for various project types. PlanSwift also integrates with Excel and external databases, allowing contractors to export reports and share results efficiently.

Additional features include roof pitch calculators, audit trails, arc and curve measurement tools, and annotation options, giving professionals full control over project accuracy. Highly customizable, it allows creation of custom formulas, reports, and cost codes. PlanSwift helps construction teams save significant time, reduce errors, and increase profitability through faster and more accurate estimating workflows.


Pricing of Marg ERP-Pharmaceutical Industry Software

Pricing plans

Introduce pricing plans

Simple, transparent pricing that grows with you. Try any plan free for 30 days.

PlanSwift Professional

USD 2,000.00 /Year

USD0.00

Perfect for your business requirements and platform usage.

BOOK A DEMO
WHAT YOU WILL GET

Key Specification

Other Categories:
Deployment: Cloud Hosted,Hybrid,Any
Customer Support: Phone,Email,Live Chat
Customization: Yes
Languages Support: English

Who uses PlanSwift

StartUps
StartUps
SMEs
SMEs
Agencies
Agencies
Enterprises
Enterprises

Company Details

  • Company Name: PlanSwift Software
  • Headquarter: Cincinnati , Ohio United States

PlanSwift Description

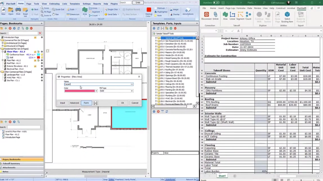
PlanSwift is a leading takeoff and estimating platform trusted across the construction industry for its accuracy, speed, and ease of use. It was built to replace manual blueprint measurements and streamline estimating workflows by digitizing the entire process. With PlanSwift, contractors can perform takeoffs by simply clicking areas on digital plans, instantly calculating dimensions, volumes, perimeters, and item counts.

The standout feature is its drag-and-drop assemblies, which let users assign predefined material, labor, and waste values directly to measurements. For example, when highlighting a wall section, the software can automatically calculate drywall sheets, screws, and labor hours needed, producing a cost estimate instantly. This reduces human error and ensures consistency across projects.

PlanSwift also supports real-time internal calculations, comparative overlays, custom cost codes, and unlimited formula creation, offering full flexibility to tailor the system to unique project requirements. Estimates can be exported to Excel or printed as reports, making it easier for contractors to collaborate with clients and stakeholders.

Its interface is modern and customizable, featuring ribbon-style menus, tabbed browsing, bookmarks, and color themes. Productivity tools such as magnifiers, auto-count for repeated items, roof and cubic yard calculators, and audit trails enhance both precision and efficiency.

The software is versatile across trades, supporting general contractors, electricians, roofers, painters, and specialty contractors. It provides measurable value by cutting down takeoff and estimate times while improving bid accuracy.

PlanSwift has been recognized in industry rankings as a top estimating solution, praised for its usability and time-saving tools. While primarily Windows-based, Mac users can run it using virtualization. The pricing model includes both one-time licensing and subscription-based options, with optional training and support packages available.

Overall, PlanSwift delivers a reliable digital platform for construction professionals looking to modernize their estimating processes and remain competitive in fast-paced project environments.

Key Features

  • Point-and-Click Takeoff: Instantly measure areas, lengths, perimeters, and counts directly from digital blueprints.

  • Drag-and-Drop Assemblies: Apply prebuilt material, labor, and waste formulas to plans for automatic cost estimation.

  • Excel Integration & Reporting: Export reports and calculations seamlessly into spreadsheets or print formats.

  • Advanced Tools: Includes auto-count, roof pitch and cubic yard calculators, arc/curve measurement, and annotations.

  • Customization: Build unlimited custom reports, formulas, and cost codes for unique project needs.

  • User Interface: Ribbon-style menus, tabbed browsing, bookmarks, hover navigation, color themes, and customizable hotkeys.

  • File Compatibility: Supports PDF, DWG, DXF, JPG, PLN, and other common plan formats.

  • Multi-Trade Coverage: Serves general contracting, electrical, plumbing, HVAC, drywall, concrete, landscaping, roofing, and more.

  • Industry Recognition: Frequently ranked among the most popular takeoff and estimating tools.

Specifications & Pricing

  • Platform: Windows-based desktop software (Mac compatible via virtualization).

  • Typical Users: Small to medium construction firms, trade contractors, and estimators.

  • Supported Trades: General contracting, concrete, drywall, electrical, HVAC, plumbing, flooring, painting, roofing, and landscaping.

  • Pricing: Approximately $1,700–$2,000 per license or annual subscription; optional support/training packages available.

  • Support & Training: Includes documentation, tutorials, and paid one-on-one training sessions.


Key Features & Specifications

  • Task Management
  • Status Tracking
  • Requirement Management
  • Project Planning
  • Issue Management
  • Resource Management
  • Budget Management
  • Contact Management
  • Collaboration Tools
  • Client Portal
  • Onboarding
  • For General Contractors
  • Quotes/Estimates
  • Cost Estimating
  • Takeoff

PlanSwift Video

Alternative

More Alternative

Active Takeoff Verified

Estimating & Takeoff Software, Made Easier So simple, you'll be up and running in minutes!

BLUEBEAM Verified

Construction software for innovators.

Square Takeoff Verified

Construction takeoff software that saves hours and boosts profit margins

Keka HR Payroll Platform Screenshots

User Reviews

WRITE A REVIEW

Keka HR Payroll Platform Key Clients

Frequently asked questions

Everything you need to know about discovering, comparing, and choosing the right AI software for your business.

PlanSwift has 1 plans,

  • PlanSwift Professional USD 2000.00 Year

PlanSwift is the Takeoff Software used for the below functionalities.

Top 5 PlanSwift features

  • Task Management
  • Status Tracking
  • Requirement Management
  • Project Planning
  • Issue Management

PlanSwift provides Phone,Email,Live Chat support.

PlanSwift is not allowing Free Trial.

PlanSwift provides Help Guides,Video Guides,Blogs,Webinars,Case Studies,Whitepapers for the software training.

Need Help Selecting
the Right AI Solution?

Speak with our team for tailored recommendations and insights to accelerate your AI adoption.

ai-help-img